Project your future into this prized Bolingbroke location!
Move in in 2021 and enjoy stamp duty savings and the opportunity to customize your townhouse.
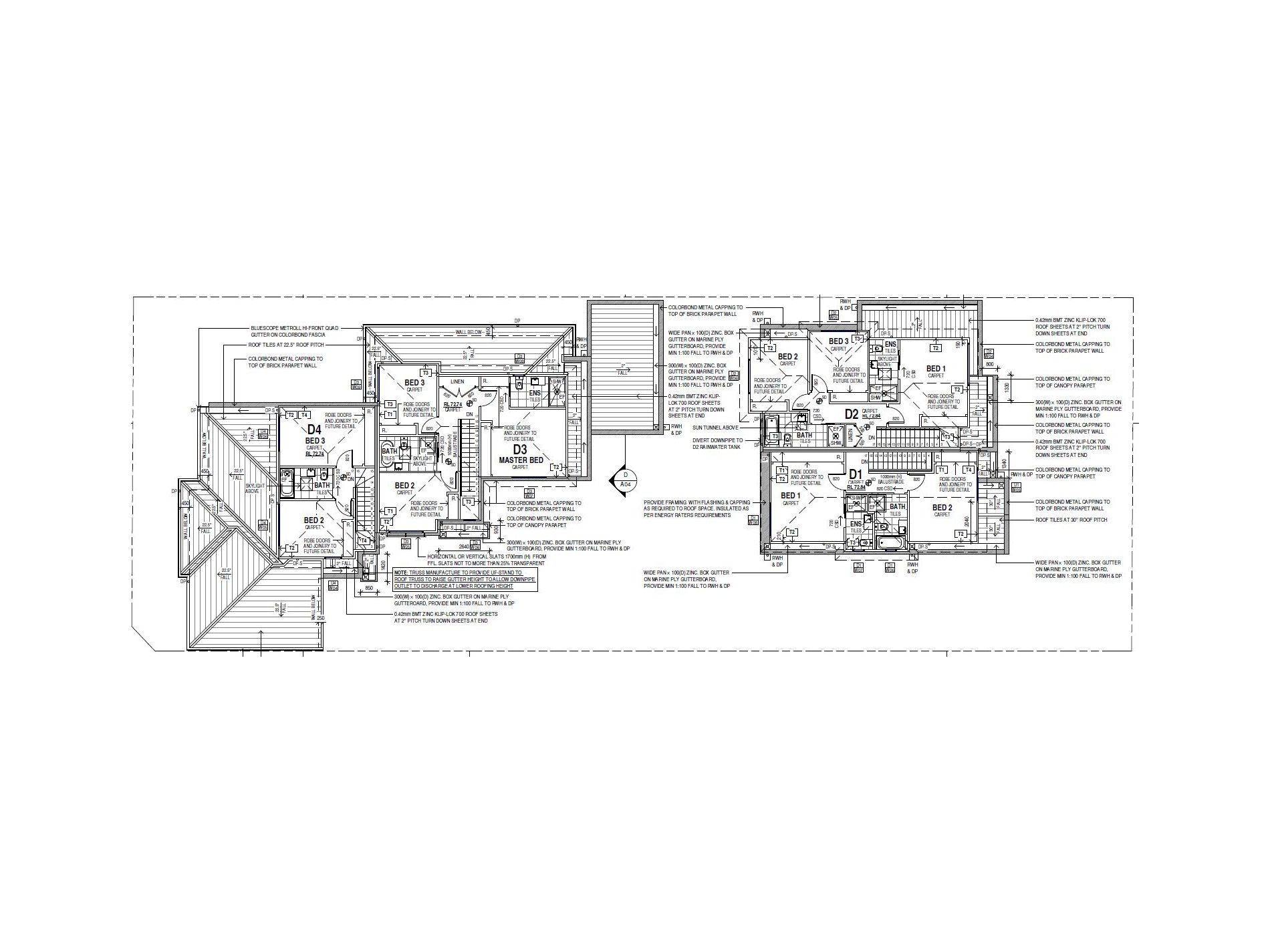
A total density of 4 townhouses on 945 sqm of land.
Each townhouse comprising of approximately 16 squares of living and between 63 and 126 sqm of outside space!!
These townhouses will feel more like residential homes in one of the most sought after residential streets in Pascoe Vale.
Only minutes to the Pascoe Vale train station and shops, or Cumberland road shops and freeway access.
Positioned in between the Pascoe Vale Primary School and the Strathmore Secondary College, which is within the zone.
Your pick of 4 units, 'first in best dressed' on 2 to be pre-sold the balance on completion.
Construction timeframe - June 2020 to June 2021
- Air Conditioning
- Split-System Air Conditioning
- Split-System Heating
- Courtyard
- Fully Fenced
- Remote Garage
- Secure Parking
- Built-in Wardrobes
- Dishwasher
- Floorboards
- Study


